dff estudi d'arquitectura
dff estudi d'arquitectura
inicio
estudio
Proyectos
Servicios
Contacto
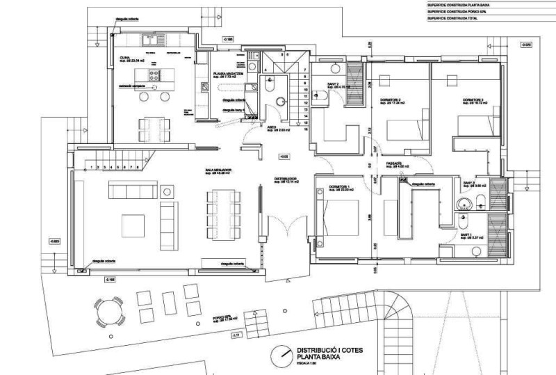
casa en Argentona
proyecto
casa GuOs
casa R+F
casa M+R
2 casas adosadas
casa Delgado
casa Addack
casa Otero
edificio de viviendas
salón "els cirerers"
puerta de acceso a finca
oficinas Smurfit España
zona de servicios
casa Eckert
loft O+F
piso en el Born
cubierta protegida
casa L+S