dff estudi d'arquitectura
dff estudi d'arquitectura

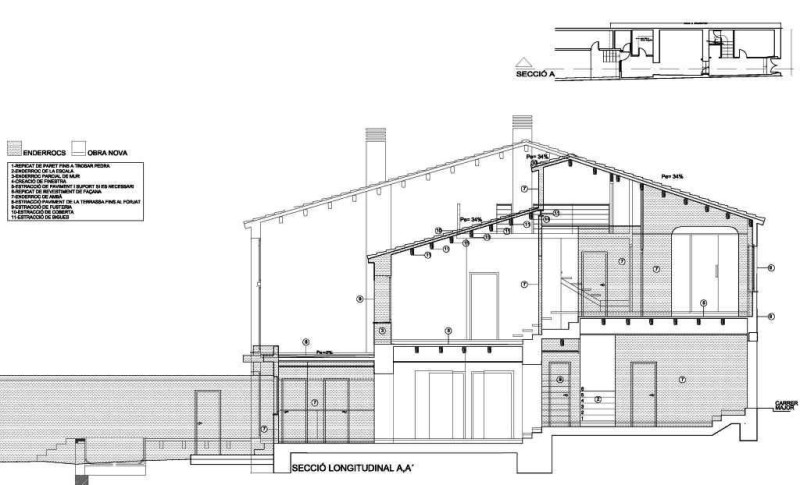
casa en Caldes d'Estrac

Obra premiada en la segunda Trienal de Arquitectura del Maresme

(TAM 2007) en la categoría de Rehabilitación.